ScanWater together with the Malthe Winje Group can assist in the construction and automation of both small to large drinking water and wastewater treatment schemes. From project scoping and initial feasibility studies to the design and technical definition phases ScanWater can help you determine the best solutions for your needs. ScanWater has experience from the management of many larger-scale projects, including site management during the construction phase. Together with Malthe Winje we can also provide fully automation systems enabling you to fully monitor and control all vital functions.
Water Solution Projects
GREENERGY Technology
Greenergy covers water and energy saving technologies developed for implementation to new and existing modern city areas.
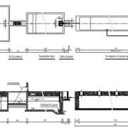
Drinking water treatment system for 3000 residents
Small drinking water systems for community,villages and small towns.
Grey water treatment and recycling
The greywater is low on nutrients and thus simple biological treatment is needed only.
Sludge treatment
The most sustainable alternative is to use sludge on land. This requires particularly disinfection and strict regulations with respect to the quality of sludge to be used.







